Ausstellung UMBAU. Nonstop Transformation // 13.11.- 06.12.2025 - Architekturgalerie München // Eröffnung - 13.11.2025, 19:00 Uhr
Zuschlag nach ÖPP-Verfahren für den Bildungscampus Riensförde in Stade
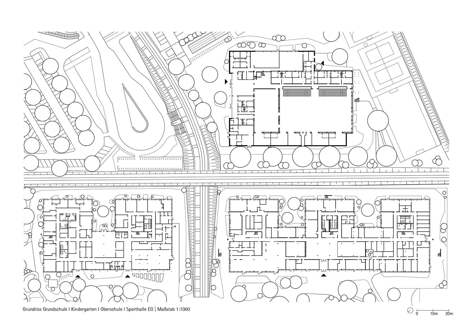
Im Stadtteil Riensförde wird ein neuer Bildungscampus (BCR) nach den Plänen der Architekten von Gerkan, Marg & Partner und den Landschaftsarchitekten Blaurock aus Dresden entstehen. Der Bildungscampus für rund 1000 Kinder und Jugendliche vom Krippenalter bis zur Oberschule wird mit der Systembauweise von Goldbeck errichtet und in einem Zeitraum von 33 Monaten geplant und realisiert. Dies ist unter anderem möglich, da die im Systembau geplanten und vorgefertigten Rohbauelemente –werkseitig schon mit Fensterelementen bestückt – „just in time“ auf der Baustelle angeliefert und nahezu ohne den Gebrauch von Ortbeton verbaut werden. In einem ÖPP-Verfahren hat die Hansestadt Stade die Firma Goldbeck Public Partner als Totalübernehmer beauftragt und ihr zudem den Betrieb der Gebäude für 25 Jahre übertragen. Mit einer Gesamtsumme von 72,5 Millionen Euro ist der BCR für Hansestadt Stade die bisher größte Investition dieser Art.
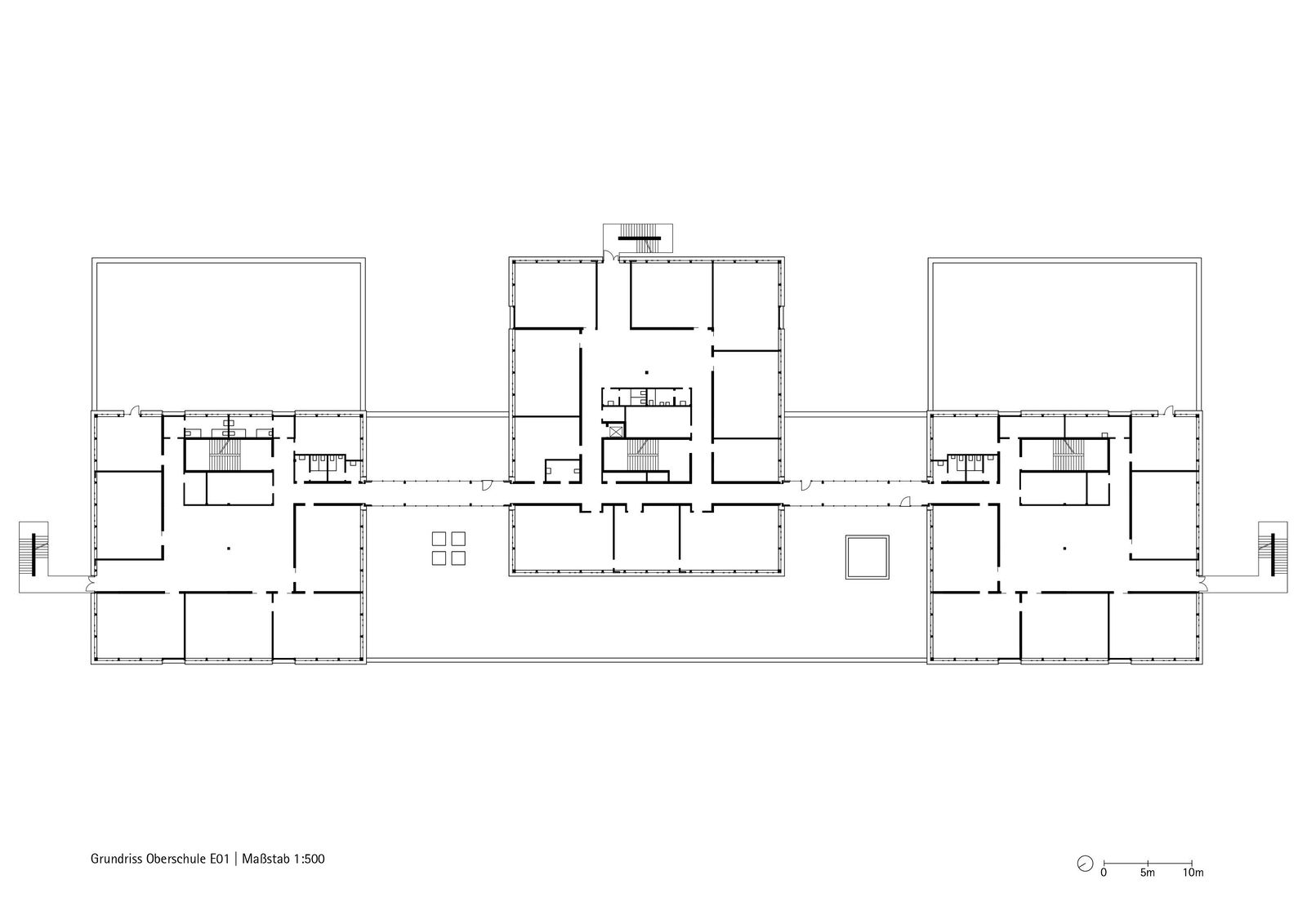
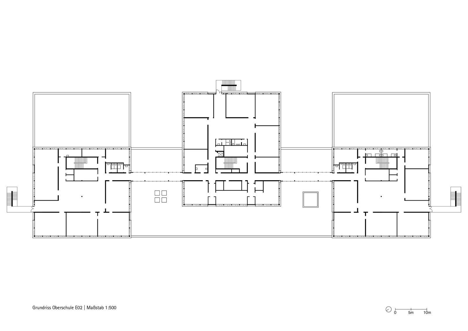
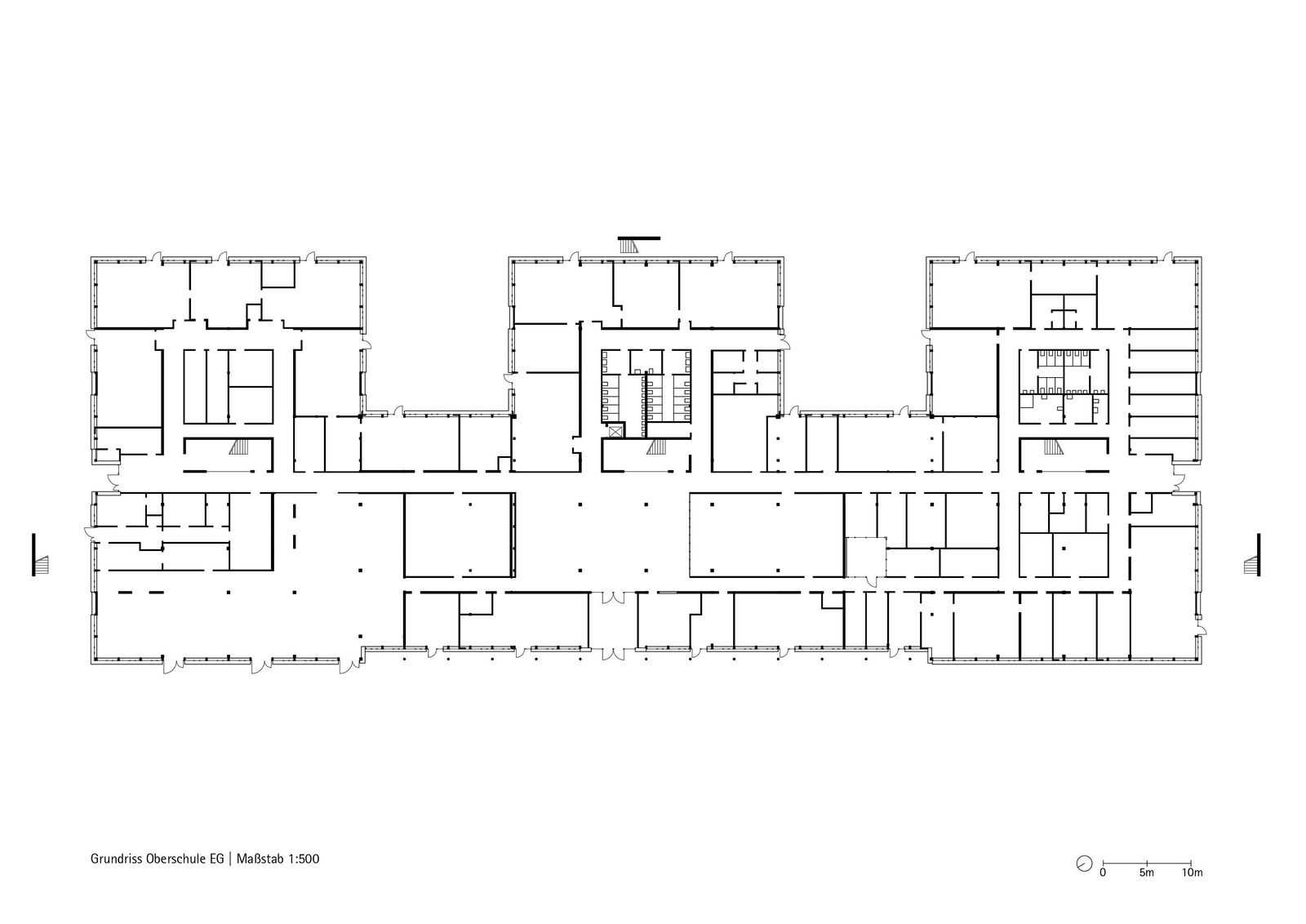
Das rund 70.000 Quadratmeter große Gelände im Süden der Stadt wird durch eine Trasse der Regionalbahn gequert und muss deshalb mittels einer Unterführung verbunden werden. Eingebettet in naturnahe Grün- und Außenräume wird sich der Campus aus einer 2- zügigen Grundschule, mit der Option im System zu erweitern, einer Kindertagesstätte mit Krippe sowie einer Oberschule für die Klassen 5 -10 und Innen- und Außensportanlagen zusammensetzen. Die Architektur aller Baukörper folgt einem einheitlichen Farb- und Materialkonzept. In der Tradition des norddeutschen Backsteinbaus werden die zwei- bis dreigeschossigen Campusgebäude mit einem sandfarbenen Klinker verkleidet. Die Proportionen der Gebäude werden durch eine horizontale Fuge zwischen Erd- und Obergeschossen gestärkt, umlaufende Fensterbänder gliedern die Fassaden zusätzlich. Der 3- und 1-Feld-Sporthallenkörper wird mit dunkelgrauen Fassadenelementen verkleidet, die dienenden Funktionen der Sporthalle ebenfalls sandfarben verklinkert. Fertigstellung und Übergabe sind für Mitte 2023 geplant.