Ausstellung UMBAU. Nonstop Transformation // 13.11.- 06.12.2025 - Architekturgalerie München // Eröffnung - 13.11.2025, 19:00 Uhr
gmp gewinnt Architektenwettbewerb für NDR-Erweiterung in Hamburg
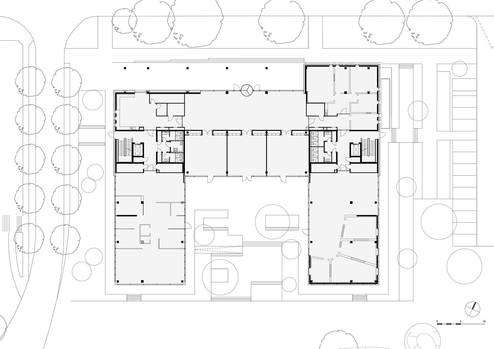
Mit ihrem Entwurf für das „Haus 24“ konnten die Architekten von Gerkan, Marg und Partner (gmp) die Jury überzeugen. Auf dem Gelände des Norddeutschen Rundfunks (NDR) in Lokstedt wird das bestehende Ensemble durch den Neubau fortgeschrieben, der den ersten Baustein der geplanten Erweiterung bildet.
Die Eingangssituation des NDR-Geländes wird östlich räumlich gefasst und bietet die Möglichkeit, die neuen Arbeitsbereiche zukünftig mit dem Altbestand zu verbinden. Die geplante Erweiterung zeichnet sich durch flexibel gestaltbare Büro- und Produktionsbereiche mit viel Tageslicht, nachhaltige Lowtech-Gebäudeausstattung und durch einen möglichst hohen Anteil an recycelbaren Baumaterialien aus.
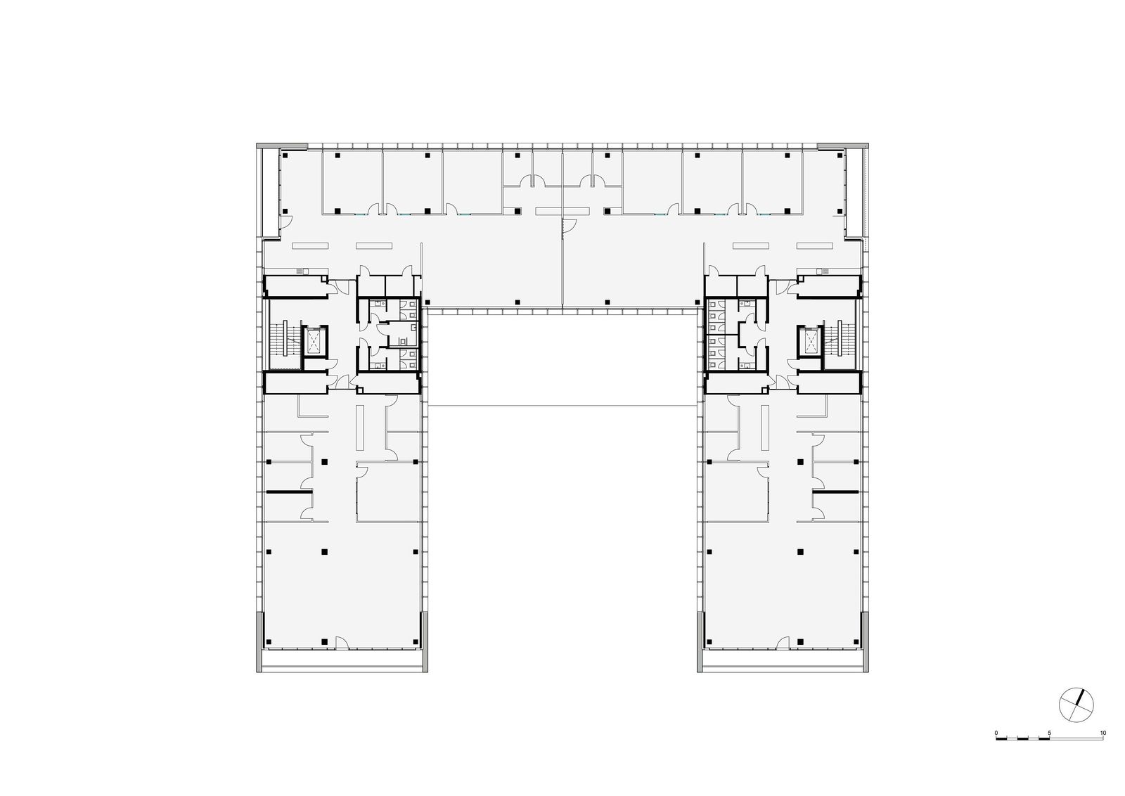
Mit einer Willkommensgeste öffnet sich das U-förmige Gebäude nach Süden und verzahnt so die Architektur mit der parkähnlichen Umgebung. Der Haupteingang zum Neubau liegt auf der Nordseite am ost-westlich verlaufenden „Boulevard“.
Die Fassadengestaltung orientiert sich an der vorherrschenden horizontalen Gliederung der Umgebung. Um die sechs Geschosse zu strukturieren, werden die oberen fünf Stockwerke durch umlaufende Fassadenbänder voneinander getrennt. Mit einer raumhohen Verglasung setzt sich das Erdgeschoss optisch von den höherliegenden Etagen mit hellen Fassadenelementen ab. Die Eingangsfassade ist nach innen versetzt angeordnet und wird so zum wettergeschützten Entrée. Durch dieses gelangt man in ein langgestrecktes Foyer, das beide vertikalen Erschließungskerne miteinander verbindet. Die nach Süden orientierten großen Besprechungsräume können durch mobile Trennwände entweder in ihrer Größe variiert werden oder das Foyer großzügig erweitern. Von hier ist der direkte Zugang zu einer Außenterrasse geplant.
Die Architekten konnten den Wunsch an eine hohe Flexibilität in Büro- und Produktionsbereichen durch die Abmessungen des Baukörpers erfüllen. So sind verschiedene Büroorganisationsformen vom Zellenbüro über Kombibüros bis hin zum Großraumbüro oder auch Mischformen realisierbar.