Exhibition UMBAU. Nonstop Transformation // Nov 13 - Dec 6, 2025 - Architekturgalerie München // Opening - Nov 13, 2025, 7:00 pm
|  | 
|       
                © CreatAR Images
                 
                © CreatAR Images
                 
                © CreatAR Images
                       
                © CreatAR Images
                 
                © CreatAR Images
                 
                © CreatAR Images
                       
                © CreatAR Images
                 
                © CreatAR Images
                 
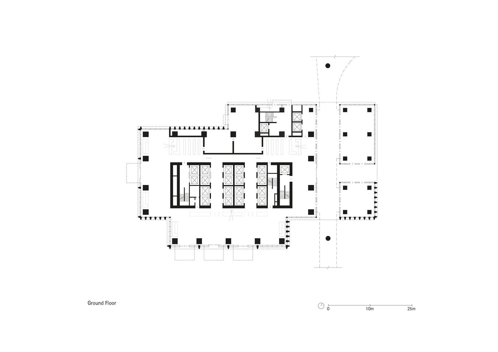
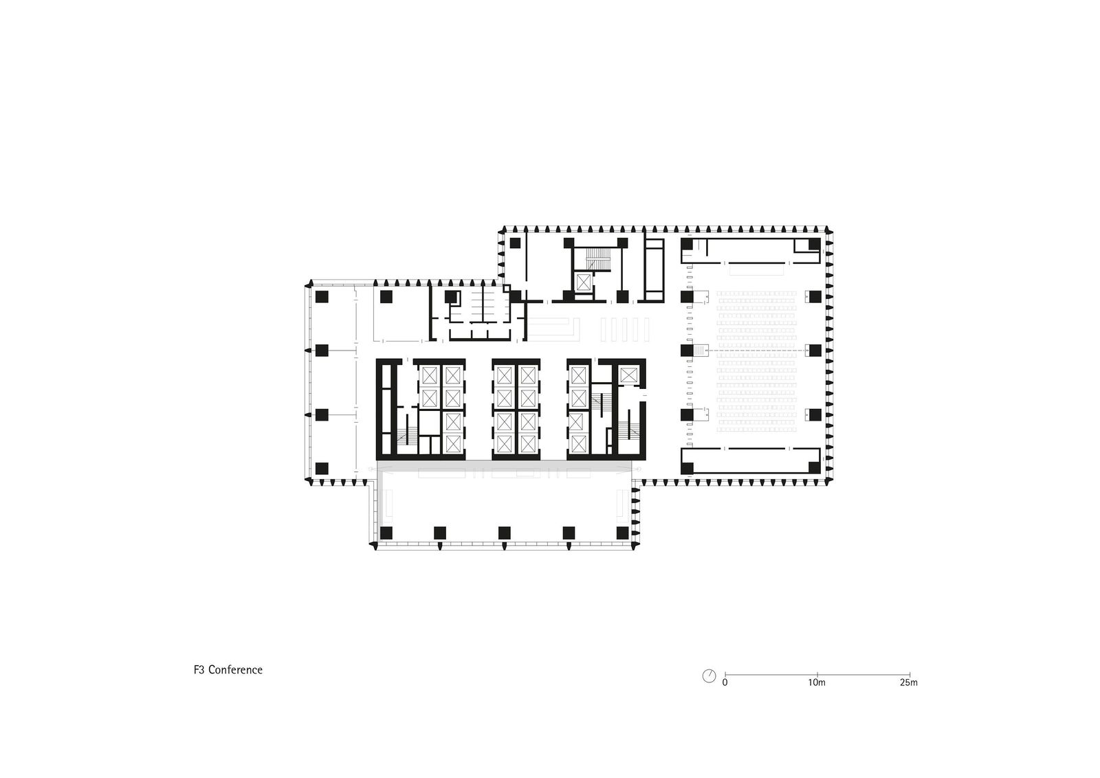
                © gmp Architects
                       
                © gmp Architects
                 
                © gmp Architects
                 
                © gmp Architects
                     
                © gmp Architects
                 
                © gmp Architects
                 Hinweise zum Copyright Eine honorarfreie Veröffentlichung ist nur gestattet im Rahmen eines redaktionellen Beitrags
        über die Architektur der Architekten von Gerkan, Marg und Partner im Kontext des Inhaltes dieses
        Booklets. Eine vollständige Nennung der Urheber des Bild- und Planmaterials in eindeutiger
        Zuordnung ist obligatorisch. Mit freundlicher Bitte um Zusendung eines Belegexemplars an den folgenden PR-Kontakt: gmp · Architekten von Gerkan, Marg und Partner | 
 
     
			 
					 
			 
			 
			 
			 
			 
			 
					 
					 
					 
					 
					 
					 
					 
					 
					 
					 
					