Exhibition UMBAU. Nonstop Transformation // Nov 13 - Dec 6, 2025 - Architekturgalerie München // Opening - Nov 13, 2025, 7:00 pm
Zhengzhou twin towers by gmp completed
Zhengzhou, the capital of Henan Province, is experiencing ongoing growth. According to current estimates, the metropolis on the Yellow River will have over 11 million inhabitants by 2020. In order to prepare for this development, a new railway station has been built in recent years to the east of the city to create a central traffic interchange. The new buildings by gmp close off an urban design axis to the west, an axis that leads from the new railway station towards the city center. Like an entrance door to the city, the high-rise buildings form a vertical counterpoise to the horizontal building of the railway station. A plaza between the towers forms a linking element. Owing to their height of 284 meters, the twin towers are significantly higher than the other high-rise buildings in the vicinity and, as identity-creating buildings in the skyline of Zhengzhou, are visible from afar.
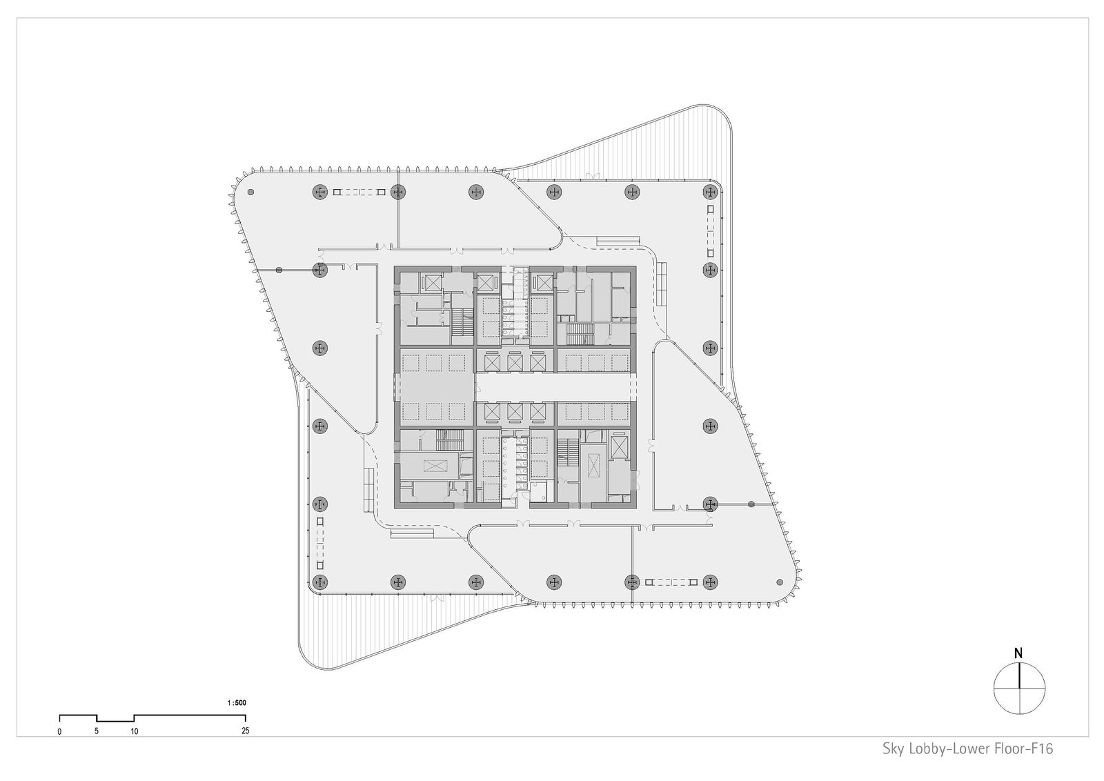
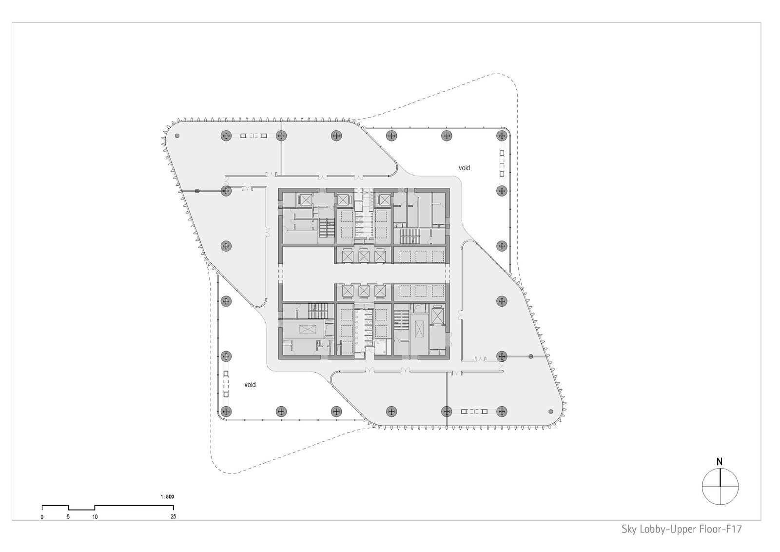
The 63 stories of the Greenland Towers accommodate mostly offices. One tower comprises about 232,000 square meters—a comparatively large area for a high-rise building of this height, which is due to the very large area per floor of 4,000 square meters. This makes it possible to flexibly divide the floor area of each floor into up to 15 units. At their base, both towers have to their side L-shaped plinth buildings that accommodate commercial functions. By separating the towers from the plinth buildings, there is unrestricted access to the lobbies of the towers from all sides. Almost 12,000 people cross the foyer of each tower every day on their way to the upper floors.
In plan, the layout of the towers has been arranged offset in windmill fashion around the square core of the building. All offices benefit from natural ventilation via concealed openings in the facade profiles. With the sky lobbies on every eighth floor, the office towers have prestigious areas in the vertical that can be used in many different ways by the local companies. An unusual feature in a high-rise building of this size is that the employees are given the opportunity to use an outside terrace at high level and, from here, to enjoy the view across the cityscape of Zhengzhou. The top stories of the Greenland Towers accommodate the eight-story Sky Atrium, which is reserved for exclusive functions: the co-called “Sky Commerce” with restaurants, shops, and a spa extends across three floors next to the atrium. Luxurious offices in the north tower and exclusive club facilities and apartments in the south tower make up the uppermost floors of the towers. With the Sky Atrium, an attractive public venue has been created for art exhibitions and concerts, thus enriching vertical urban life in China with a new attraction at a height of 240 meters.