西安丝路国际会议中心
项目正式落成
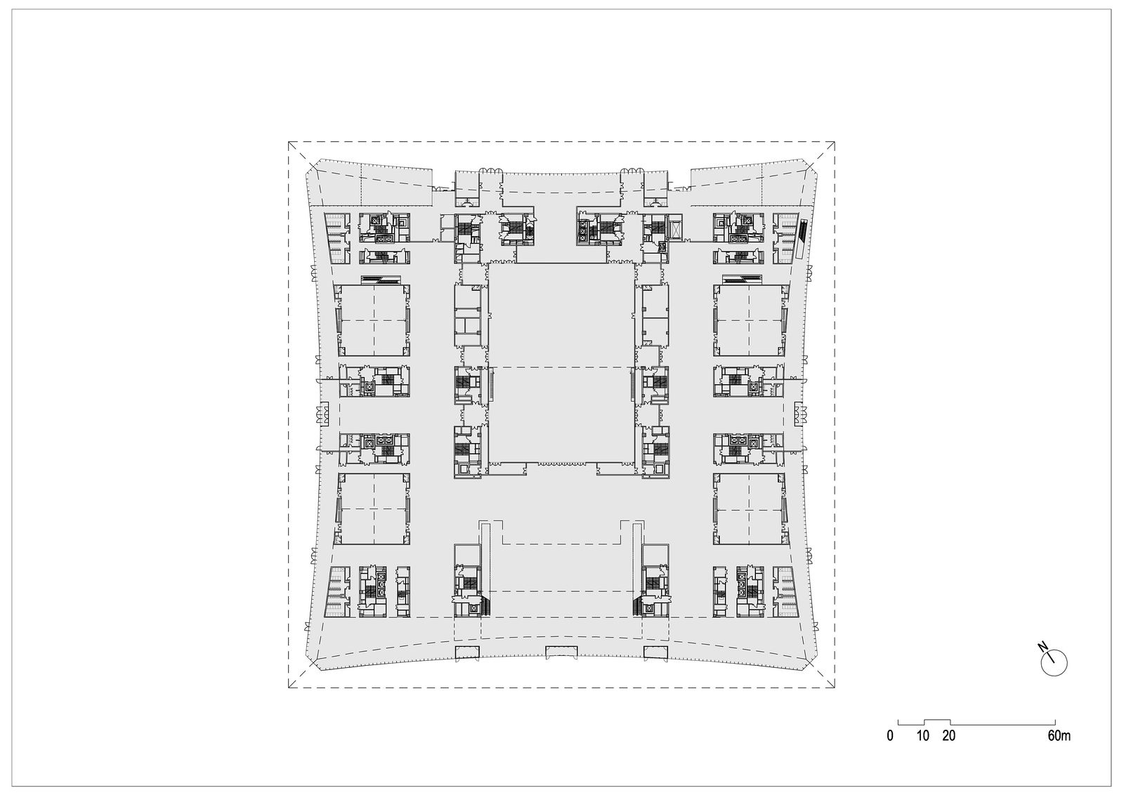
西安丝路国际会议中心项目已经正式落成。2017年,gmp·冯·格康,玛格及合伙人建筑师事务所赢得了西安丝路国际会议中心的设计竞赛,与同为gmp设计的国际展览中心一起组成了会展中心建筑群,是陕西省贸易和产业发展的核心项目。位于东侧的会议中心地上总面积为12.8 万平方米,提供会议空间、展览空间及多功能空间,它将填补西安及西北地区大型专业会议中心场馆的市场空白,可满足国际高峰论坛、双边及多边会议等大型会议和宴会的功能要求。
© CreatAR_Images
方正对称的屋面、均衡的水平向立面比例、理性规整的柱式是对中国古典建筑特征进行转译和传承。会议中心建筑以200米见方的正方形平面,与向内凹进的弧线立面形成均衡大气的建筑体量。
© CreatAR_Images
全玻璃幕墙环绕的通透的首层空间,可通过水面之上的连桥到达,建筑整体呈现悬浮的景象。这种轻盈的状态是通过独特的悬挂结构体系实现的:会议中心选用了核心筒+桁架的悬挂结构体系,满足会议功能要求的无柱空间,同时桁架向外挑出形成宽大弯曲屋面。下月牙悬挂的内凹幕墙,形成宽敞友好的入口空间。在外立面,通过屋顶桁架悬挂的180 根超纤细钢柱实现,它们的柱高在30-40米之间,直径仅为0.6米。当月牙形被照亮,会议中心成为了西安滨河的标志景观。