Ausstellung UMBAU. Nonstop Transformation // 13.11.- 06.12.2025 - Architekturgalerie München // Eröffnung - 13.11.2025, 19:00 Uhr
Neubau für die Staatlichen Archive Bayerns in Kitzingen geplant
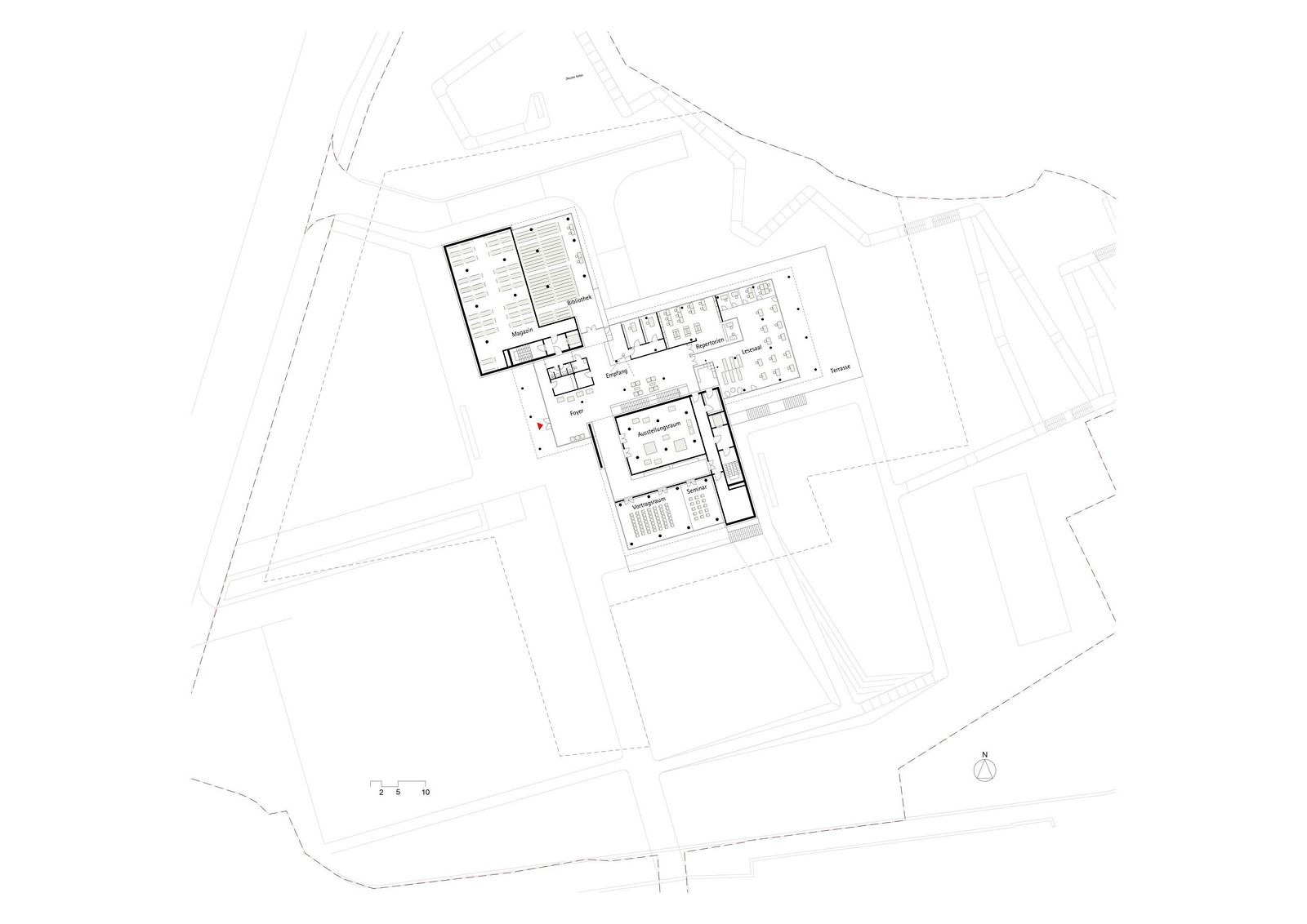
Am 18. Oktober 2019 haben die Architekten von Gerkan, Marg und Partner (gmp) in Kooperation mit Capatti Staubach Landschaftsarchitekten den Wettbewerb zum Neubau der Staatlichen Archive Bayerns in Kitzingen gewonnen. Von 80 Büros, die sich für die Wettbewerbsteilnahme beworben hatten, waren im Vorfeld 25 Teilnehmer zugelassen worden. Das neue Staatsarchiv soll unter anderem wissenschaftliches Arbeiten ermöglichen und zugleich Kitzinger Bürgern und Besuchern zur Verfügung stehen. Gefordert war daher ein ganzheitliches Konzept, das auch das umgebende Gelände mit seiner Nähe zur Altstadt in die Planung einbindet.
Das Grundstück befindet sich nördlich der Kitzinger Altstadt in exponierter Hanglage mit Blick auf das Maintal. Der Bau wird auf einem Sockel platziert und in drei Körper gegliedert, die wie eine Skulptur in der Landschaft liegen und sich aufgrund der Kleinteiligkeit gut in das Panorama der angrenzenden Altstadt einfügen. Zwei Kuben mit quadratischem Grundriss, die das Archiv beherbergen, werden durch einen pavillonartigen, flacheren Baukörper miteinander verbunden. Eine durchgängige Verglasung der Eingangszone und des Erdgeschosses öffnet das Gebäude zur Umgebung, während die Archivbereiche und deren Fassaden geschlossen bleiben. Rötlich-cremefarbener Sandstein verortet den Neubau zugleich in der grünen Umgebung und dem städtischen Kontext. Alle Fassaden des freistehenden Gebäudes leiten zum Vorplatz im Westen über, wo sich der Haupteingang befindet. Im Erdgeschoss sind die öffentlichen Bereiche vorgesehen – ein Veranstaltungssaal, der sich mit einem Ausblick nach Süden orientiert, und ein Lesesaal, der zur Mainseite nach Osten und Süden ausgerichtet ist. Die Büros befinden sich im ersten Obergeschoss und werden über durchlaufende Fenster mit Tageslicht versorgt. Das Archiv selbst ist in den Obergeschossen, im Sockel- und im Untergeschoss untergebracht.Von der Aussichtsterrasse auf Erdgeschossniveau führt eine Freitreppe in die umliegende städtische Parklandschaft. Die Planung von Capatti Staubach Landschaftsarchitekten respektiert die vorhandene Topografie mit über 18 Metern Höhenunterschied und durchzieht sie mit einem barrierearmen bis barrierefreien Wegenetz. Der Neubau wird von drei Seiten zugänglich gemacht – vom Main im Osten über einen Serpentinenweg mit geringer Steigung, von Süden über einen Fußweg mit Brücke hin zum angrenzenden Gelände der D.-Paul-Eber-Mittelschule, und von Westen über den Vorplatz am Haupteingang